
ご自身で長く土地探しをされていたN様ご夫婦。駅近でお子様の通学にも便利な土地に巡り合い、建築会社をお探しの中オレンジハウスへお越しくださいました。お二人ともキャンプが趣味で、インテリアもインダストリアルなテイストがお好み。オレンジハウスのモデルハウスや施工事例を気に入っていただき、設計施工のお手伝いをさせていただきました。
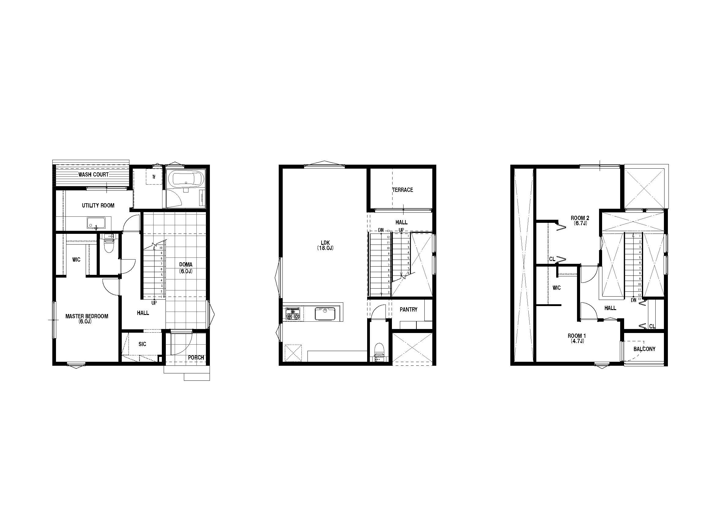
都心の密集地の為、外部からのプライバシーに配慮しながら、開放感と居心地の良さを感じられるようプランニングをスタート。初回にご提案した設計コンセプトや外観イメージからすぐに方向性が固まり、限られた空間をメリハリよく使い分けた間取りになっています。
室内に1歩足を踏み入れれば、土間玄関と3階までの吹き抜け空間が贅沢に広がります。内装はスタイリッシュに仕上げながら、ふんだんに取り入れた天然木から木の香りや温もりも感じられます。周辺の建物の配置から一番条件の良い2階南東側にインナーテラスを設けているので、上下階や家族が集うリビングへも光や風が通り抜け空を眺める事もできます。
他にもカフェのようなキッチン、ホテルライクなサニタリールーム、玄関土間と繋がる書斎など、ご夫婦の理想を叶えながら家族4人が快適に暮らせる3階建のお家になりました。
N様ご家族と担当スタッフへのインタビュー動画もこちらからご覧いただけます。
